Обяви За нас Контакти
Продава 4-СТАЕН
град София, Овча купел
330 000 €
645 423.90 лв.

(1 919 €, 3 753.24 лв./m2)
Цената е с включено ДДС
История на цената
Коригирана в 14:55 на 8 февруари, 2026 год.
Обявата е посетена 2627 пъти.
Площ:
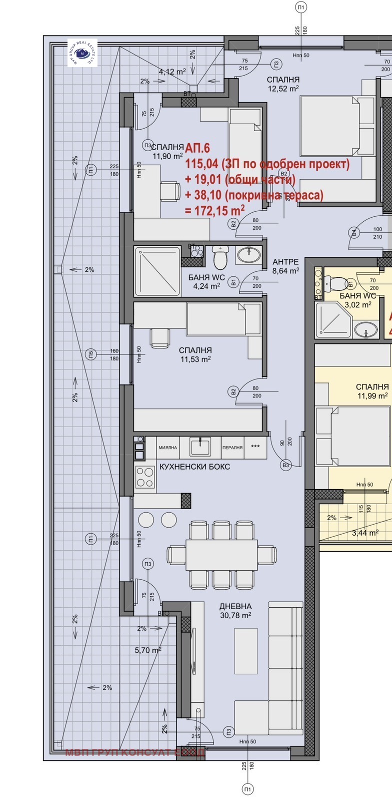
172 m2
Етаж:
1-ви от 5
Газ:
ДА
ТEЦ:
НЕ
Строителство:
Тухла, Въведен в експлоатация 2024 г.

Описание на имота:


MVP GROUP REAL ESTATE Продава с АКТ 16 Просторен Четиристаен апартамент в квартал Овча Купел. Бутикова сграда състояща се от 14 апартамента с висок клас на строителство в близост до Нов Български Университет и метростанция Мизия на 5 минути от Булевард Цар Борис 3 и Стадион Славия. Жилището разполага с кухненски бокс, трапезария и дневна с излаз на тераса 38 кв.м. , три спални, две бани с тоалетни и тераса. Отопление на газ + положени тръбни пътища за климатици и подово отопление на коридора и баните . Енергийно ефективна сграда ? с ниски сметки , поради окачената вентилоруема фасада изградена от метална конструкция с пълнеж от каменна вата и HPLпокритие . Безплатно съдействие за ипотечено кредитиране със всички водещи банки също така и довършителни работи на конкурентни цени.
Особености
Тухла
За контакт:
0877115165
Агенция:
МВП ГРУП КОНСУЛТ ЕООД
0877115165
МВП ГРУП КОНСУЛТ ЕООД  logo
В imot.bg от 2023 г.
mvpetrov19.imot.bg
Адрес:
област София, гр. София, Ж .К. Славия бл. 33 вх .А
ИЗПРАТИ ЗАПИТВАНЕ
ИЗПРАТИ ЗАПИТВАНЕТО

Продава 4-СТАЕН
град София, Овча купел
Обява: 1d175993538724645

330 000 €
645 423.90 лв.
История на цената
(1 919 €, 3 753.24 лв./m2)

Цената е с включено ДДС
ЗАПАЗИ ОБЯВАТА

Местоположение: град София, Овча купел

Допълнителни данни за имотите в района и сравнение с други райони

Покажи

Период

и 2 месеца

* Средните цени са определени чрез медианна стойност